Référence : LC340
A louer / A vendre
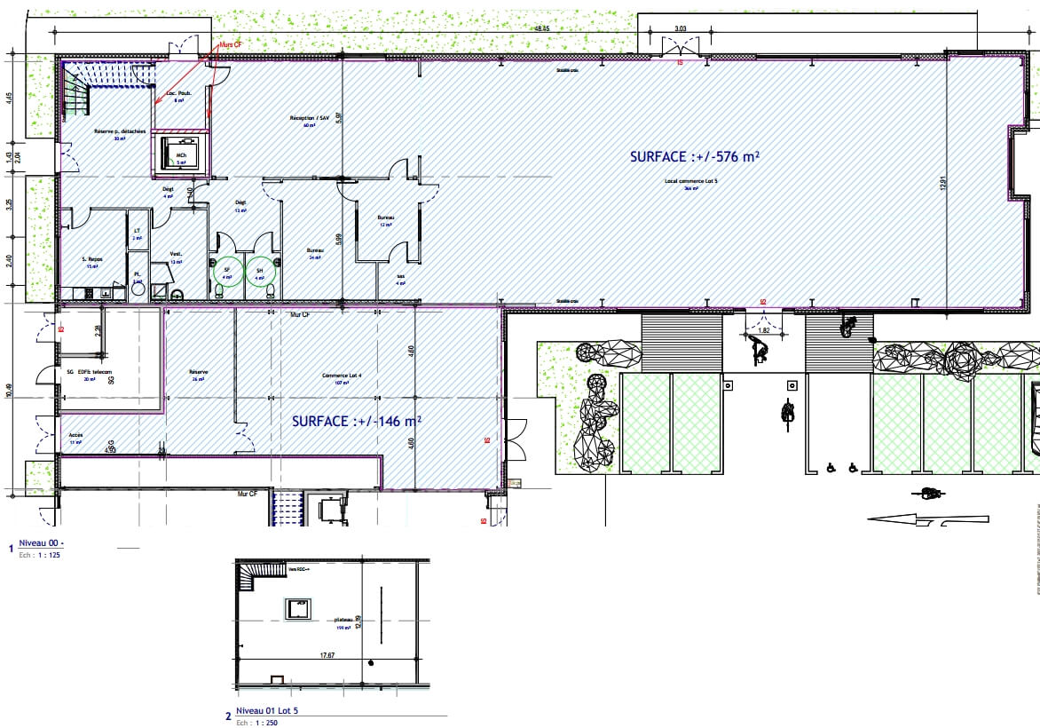
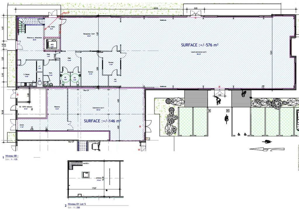
Située au cœur d’une importante zone commerciale et tertiaire à proximité immédiate des grands axes routiers, au sein d’un complexe plus vaste, case commerciale de 777m².
Programme neuf livré en octobre 2025.
Surfaces :
- Immeuble R+1
- Surface de plancher rdc : 572m²
- Surface de plancher mezzanine : 205m²
Adaptable en surface tertiaire
Prestations :
- Accès PMR
- Accès livraisons
- Espace de vente / show-room chauffé
- Bureaux cloisonnés en rdc
- Salle de repos et sanitaires PMR
- Réserve
- Mezzanine à l’étage à usage de stockage ou de bureaux
Conditions financières :
- Prix de vente = 1 790 000.00 € HT
- Promesse de vente sous conditions suspensives
- Honoraires de commercialisation à la charge du vendeur
- Loyer annuel = 180€HTHC/m²/an
- Bail commercial 3/6/9 ans
- Dépôt de garantie : 2 termes de loyer
Divers :
- Bâtiment qualitatif très lumineux
- Bardage double peau isolé
- RE 2020
- Vitrage securit anti-intrusion
- Parkings privés VL avec marquage au sol
- Zone de chalandise premium
- Accessibilité et visibilité depuis l’axe principal
Pour + de renseignements : contact@seleneimmobiliere.fr / 06.50.28.97.16.
